First World Towers
Incheon, South Korea
Size
3,700,000 sf total, 2,654 units total
Architect
KPF, Kunwon
Role
Project Architect at KPF (Mid-Rise Towers)
Photography
KPF, Jaesung
Distinctions
* AIA National: Housing Design Award
* AIA New York: Housing Design Award 
* AIA New York: International Design Award
* Korea Architecture Award
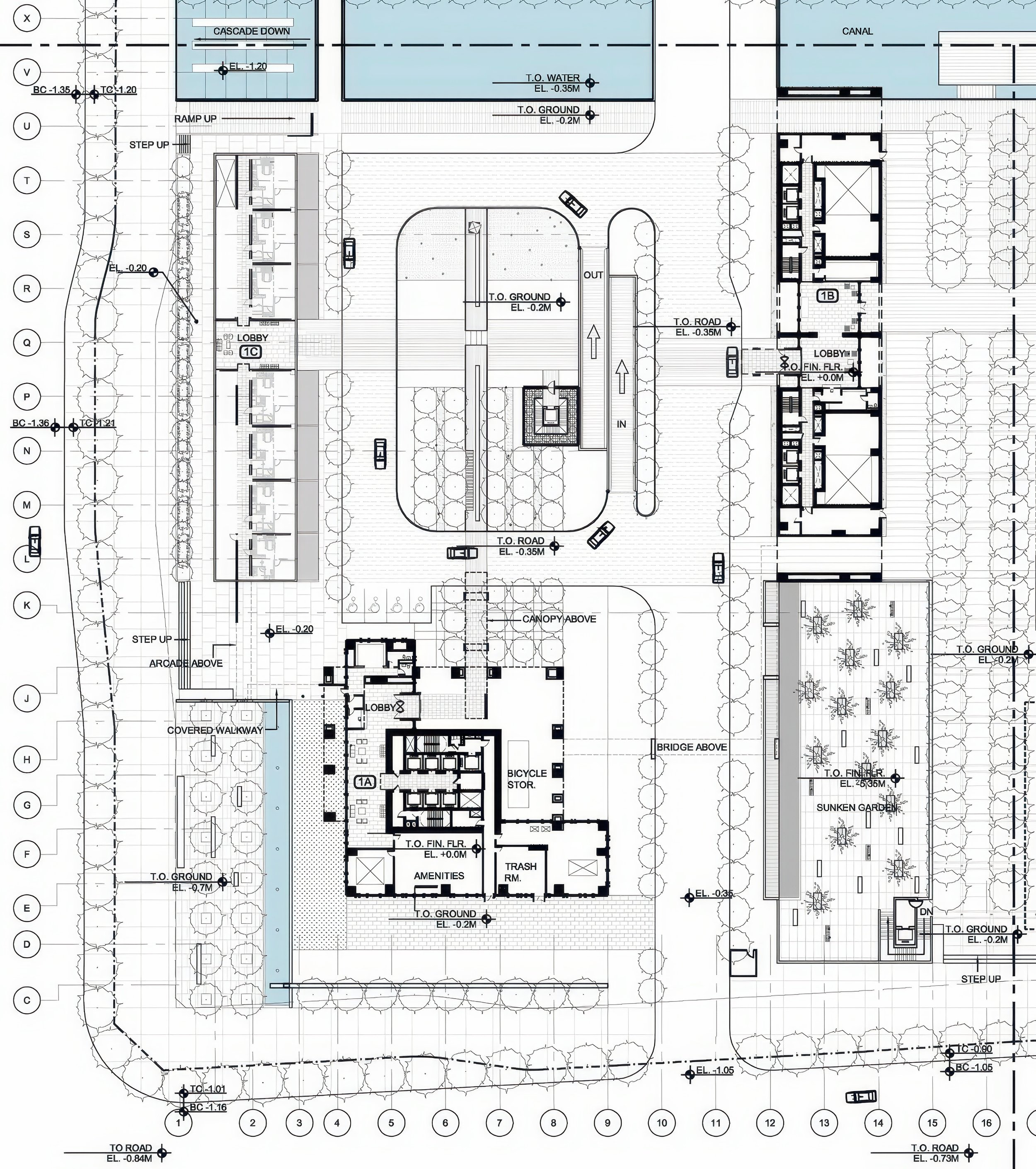
The main architectural goal for the first residential project in Songdo International Business District (New Songdo City) was to rethink the traditional idea of the superblock—not as a single, uniform housing complex, but as a collection of unique, smaller communities. This was achieved by varying building heights in a non-linear way.
In contemporary Korean cities, superblocks and residential towers are the standard models for urban living and planning, heavily influenced by Le Corbusier’s Radiant City concept, which has been widely adopted across the country. KPF designed the First World Towers based on an understanding of Korea’s social structure. The development includes four courtyard-based communities, each divided into three smaller neighborhoods of around 200 households.
Traditional Korean architecture also shaped the project’s layout. Movement through palaces and gardens in historic Korea often involves changing directions and offset pathways. This idea was reflected in the design to soften the overwhelming vertical scale typical of high-rise buildings. Irregular surface lines and fragmented window patterns help reduce the visual impact of height. Additionally, architectural features like large openings, arcades, and pavilion structures bring the building scale down to a more human, approachable level.
 
            
              
            
            
          
               
            
              
            
            
          
               
            
              
            
            
          
               
            
              
            
            
          
               
            
              
            
            
          
               
            
              
            
            
          
              